无障碍    |   

唐尧圣地 李氏故里
当前位置:首页 >  政务公开  >  法定主动公开内容  >  公告公示

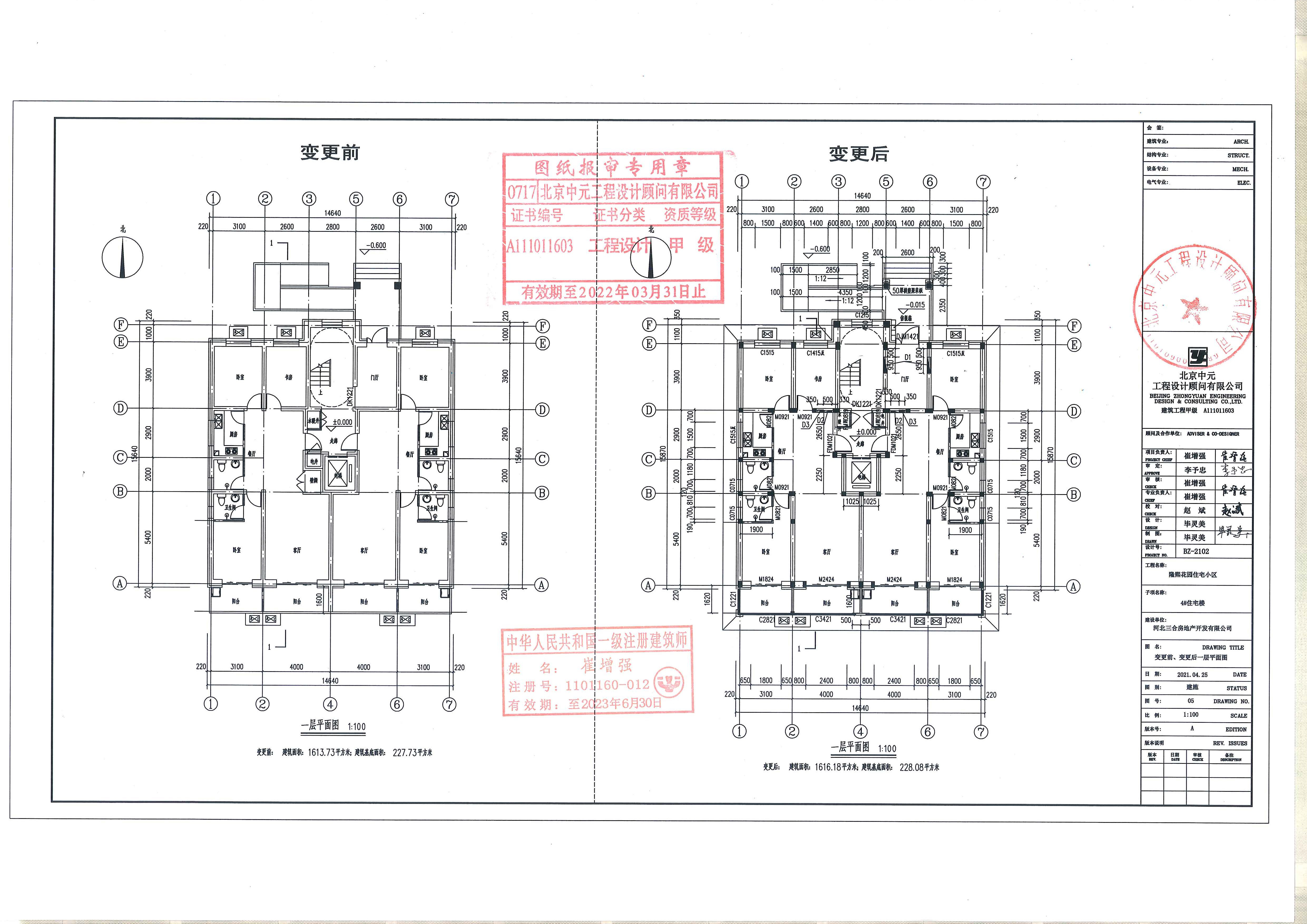
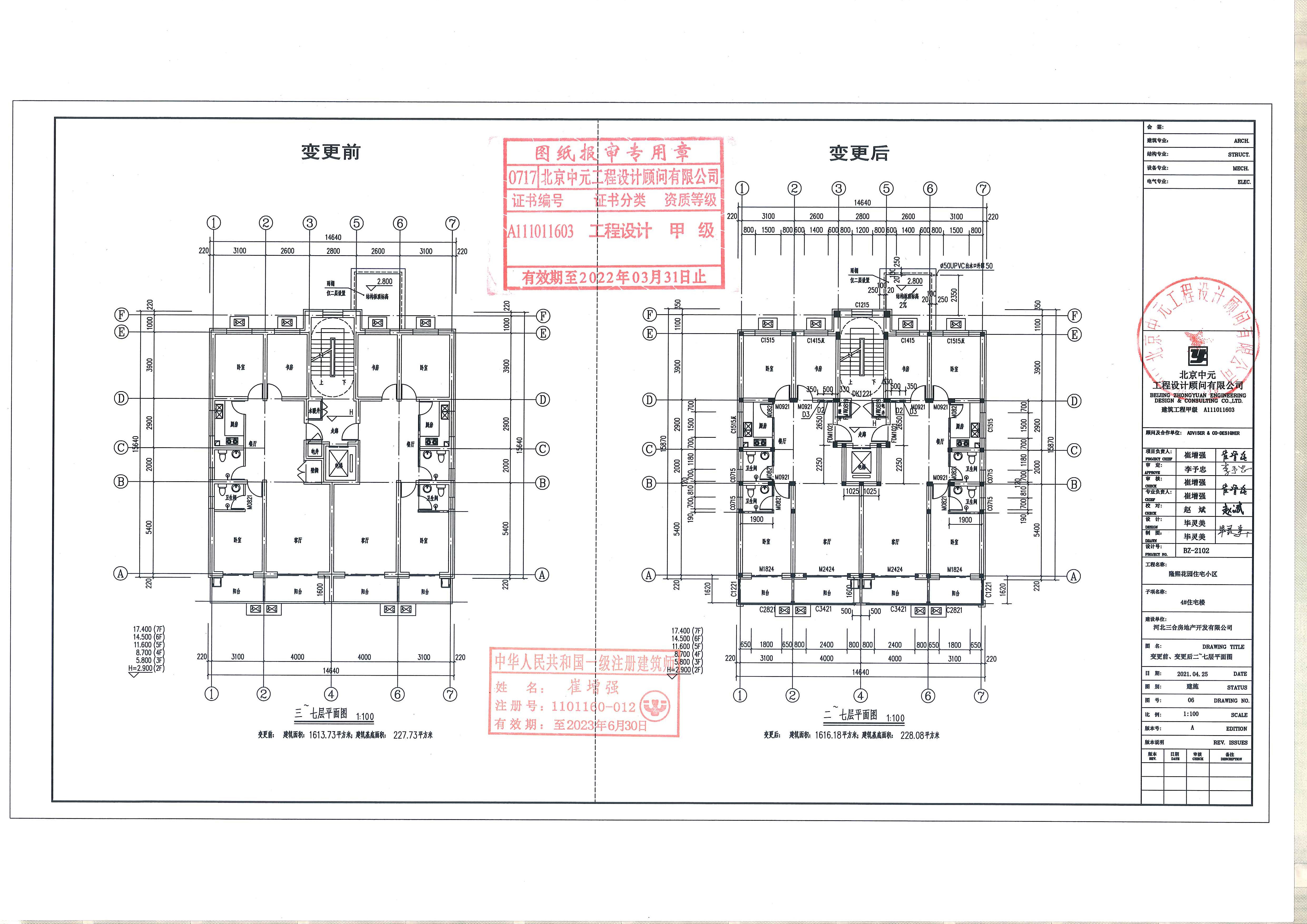
相关利害关系人告知书(隆熙花园住宅小区工程项目)

来源:自然资源和规划局 时间:2022-08-22 字体:【  

体裁分类:公告公示    主题分类:国土资源、能源    索引号:lyxgtzyj/1661414510387

01.jpg

02.jpg

03.jpg

04.jpg

05.jpg

06.jpg

07.jpg

 


扫一扫分享到手机端