无障碍    |   

唐尧圣地 李氏故里
当前位置:首页 >  政务公开  >  法定主动公开内容  >  公告公示

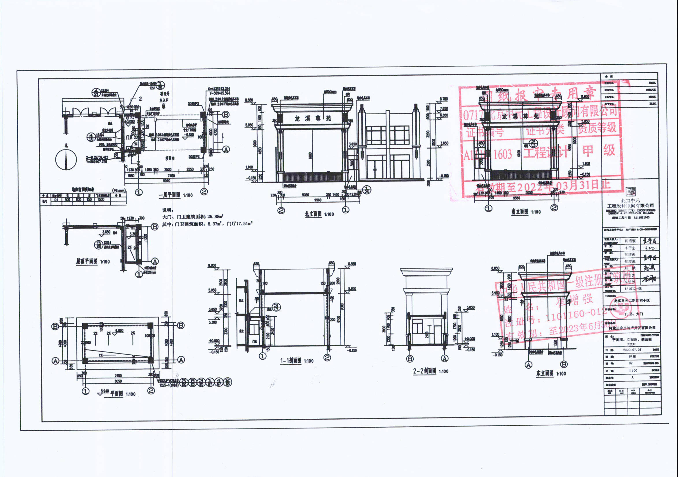
相关利害关系人告知书(龙溪尊苑住宅小区二期工程项目)

来源:自然资源和规划局 时间:2022-07-18 字体:【  

体裁分类:公告公示    主题分类:国土资源、能源    索引号:lyxgtzyj/1658799794202

1.jpg


2.jpg

3.jpg

4.jpg

5.jpg

6.jpg

7.jpg

8.jpg

注:本文由隆尧县自然资源和规划局仅在“隆尧县人民政府”网发布,以此为准,未经授权,谢绝媒体(包括公众号)转载。转载请在醒目位置标注来源:隆尧县人民政府网

扫一扫分享到手机端